Obiettivocasa - TRE LOCALI PORTA VENEZIA

  • Vendita

TRE LOCALI PORTA VENEZIA

560.000 €

3 Locali | 1 Servizi | 92 Metri quadri

Descrizione

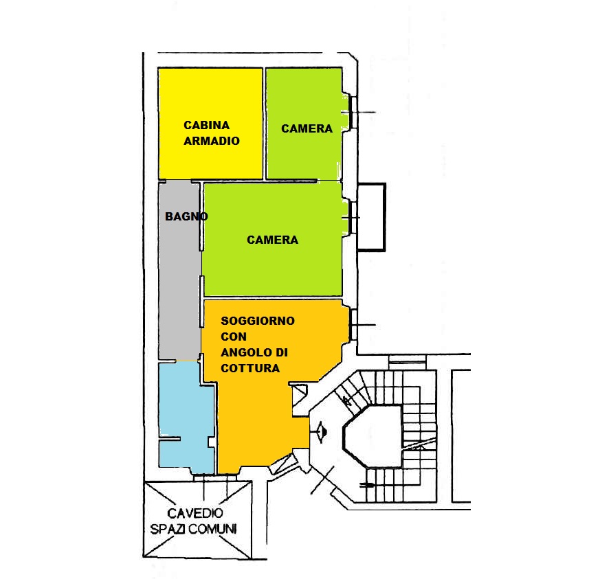
TRILOCALE IN VENDITA – PORTA VENEZIA, VIA LAZZARETTO In una delle zone più richieste e servite di Milano, a pochi passi da Porta Venezia, proponiamo in vendita trilocale di circa 92 mq situato al primo piano interno di uno stabile d’epoca anni ’30, dotato di servizio di portineria per l’intera giornata. L’appartamento si presenta con una razionale distribuzione degli spazi e buone condizioni interne, pur offrendo la possibilità di personalizzare gli ambienti secondo le proprie esigenze. Composizione interna: soggiorno con angolo cottura, Due camere da letto, di cui una dotata di comoda cabina armadio, Bagno finestrato, Balconcino con affaccio interno e silenzioso, Lo stabile mantiene il fascino architettonico dell’epoca, mentre l’esposizione interna garantisce tranquillità e privacy pur rimanendo nel cuore della città. Ulteriori informazioni: Libero al rogito notarile. Ideale per chi cerca un’abitazione di charme in una zona ben collegata, ricca di servizi, negozi, locali e mezzi pubblici. Richiesta economica: € 560.000 Per ulteriori dettagli o per fissare una visita, siamo a disposizione.

Dettagli Immobile

  • Appartamento
  • BUONO STATO
  • 1
  • 3
  • 92 Mq
  • 1
  • 2
  • ANGOLO COTTURA
  • 0
  • 0 mq
  • 0 €
  • 1
  • mq
  • CONDOMINIALE
  • mq
  • 100 €
  • No
  • No
  • AUTONOMO
  • EPOCA ANNI '30
  • No
  • INTERNA
  • AL ROGITO
  • G

Posizione

Cerchi la tua casa dei sogni?

Possiamo aiutarti a trovare la tua nuova casa